13208166786
四边形帐篷(江南忆)

四边形帐篷(江南忆)

主材:优质碳钢钢管(氟碳漆防锈处理)
外膜:PVDF优质膜材
内膜:PVC
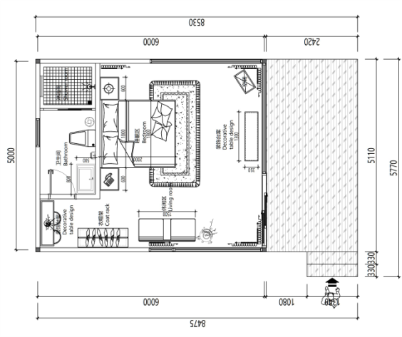
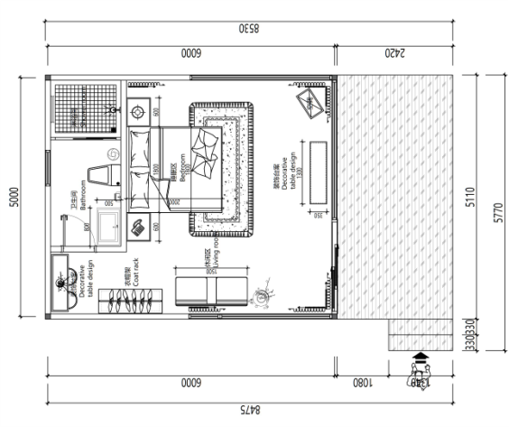
墙体:双层中空玻璃 规格:4m*6m 套内面积:24㎡
投影面积:48.28㎡
抗风等级:10级以下

产品咨询
产品介绍

四边形帐篷(江南忆)

四边形帐篷(江南忆)

四边形帐篷(江南忆)

四边形帐篷(江南忆)

产品咨询